West End Avenue Apartment

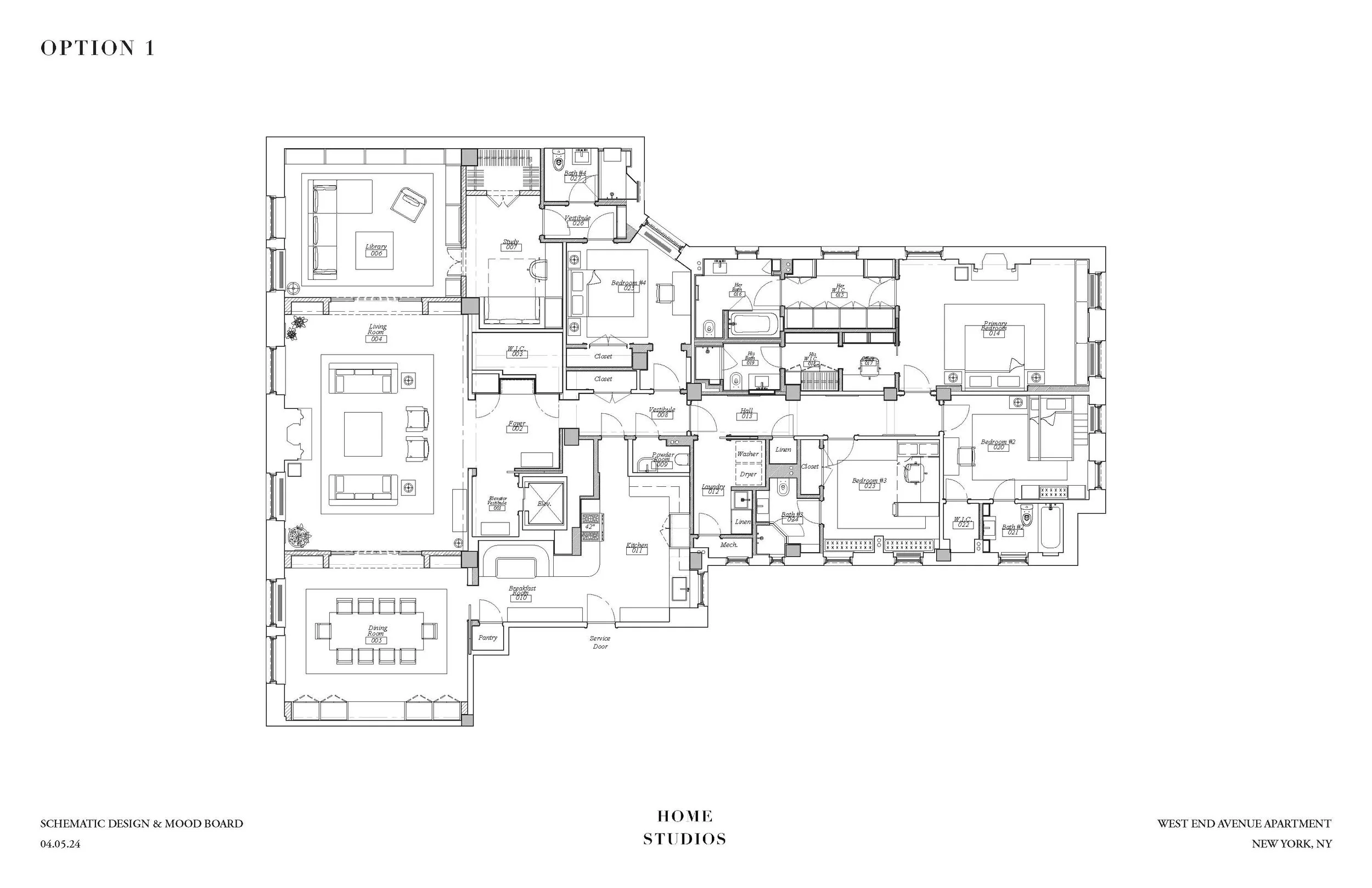
1. Schematic Design

 

2. Pillars and Mood Board

  • A comfortable and warm sanctuary for a family with three children, creating a space that is both beautiful and inviting. The interior is infused with an atmosphere of welcoming and coziness; ensuring it becomes the center of family gatherings and shared moments.

  • A diverse, curated collection of furniture and objects, ranging from heirloom vintage pieces to custom creations, all reflecting the unique character and perspectives of the owners. Unexpected moments arise from the unconventional blending of materials, intentional play with scale, and eclectic arrangement of furnishings. The result is harmonious and sophisticated, with a touch of whimsy.

  • An emphasis on enduring quality and detailed craftsmanship throughout the design process, selecting materials and furnishings that withstand the test of time. Attention to detail imbues every aspect—from a door handles to a perfectly honed slab of marble—with an aim to create a space cherished and enjoyed by generations to come.

 

3. Sketches and Inspiration for Design Charrette

Kids’ Bedrooms and Baths

 

4. Design Development: Views, Materials

Entrance and Corridor

 

Living and Dining

 

Library and Study

 

Primary Bedroom, His and Hers Closets, His and Hers Baths

 

Kids’ Bedrooms and Baths

Previous
Previous

Park Avenue Apartment

Next
Next

Chelsea Penthouse